• 搜索
 产品列表
销售热线
  • 上海:021-68568185  68567085
  • 北京,广州,深圳,天津,重庆,成都
  • 武汉,西安,东莞,沈阳,青岛,佛山
  • 杭州,苏州,南京,郑州,长沙,合肥,芜湖
当前位置:

松下型材门自动门 - 有框门感应门 提供出入口整体解决方案
 

提供出入口整体解决方案 为您创造自由畅通的生活环境

 

选择型材自动门的3大理由


理由1  量身定制 施工便捷          理由2  系统配套 解决方案          理由3 风格统一 外形美观

 

松下型材门自动门


 

 

使用场所
型材自动门系统广泛使用在酒店.商场.银行.工厂.办公楼.公共建筑.连锁商超等出入口

 

销售模式--定制销售        


STEP 1 测量现场尺寸      STEP 2 设计方案图 甲方签字确认      STEP 3 定制加工,发货后施工

 

松下型材门自动门

 

 

产品组成
门体部分  门机系统


门体部分
包含门框.轨道.盖板.门扇.止摆器
门体采用高强度铝合金,坚固耐用,承重不变形。
门体表面有多种处理.颜色可选择,氧化.碳喷涂.拉丝.镜面抛光.喷砂处理,可做黑.银.红.木纹等多种颜色。标准品为阳极氧化银白色和黑色。

框架有“Panasonic” 标识,分别在正面盖板右下角及门梁的相对应位置。

玻璃:建议标配8mm。抗风压等级为4级。


门机系统
轻型——单扇承重75KG
重型——单扇承重120KG,150KG

 

产品特点


量身配套  施工便捷
根据现场尺寸量身定制门体,活动扇.固定扇.立框组合,通过螺丝紧固连接,现场安装不需要再加工裁切及焊接等工艺,施工难度及工作量大大降低。
设计特定玻璃胶条,无需打胶,提高施工的便捷性。

 

系统配套  解决方案
采用高强度铝合金型材门体,配合松下自动门发动机装置,人性化设计。
门体与门机系统配套,还可以配合功能部品实现锁门.遥控.门禁等各种附加功能,为客户提供整体解决方案。

 

风格统一  外形美观
适合连锁商超.银行.便捷酒店等统一装修使用,树立统一的店面形象。
外形美观.高档,门体颜色可选,与建筑物主体风格吻合。
门体采用防尘保温设计,配备优质抗磨毛条,密封性能良好 。

 

 

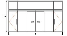
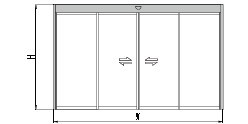
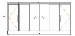
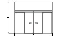
产品参数 

  

样式
图例 30型材
门体尺寸(m)
50型材
门体尺寸(m)
70型材
门体尺寸(m)
基本样式
(双开)
  尺 寸 ① W≤4.2
H≤2.6
尺 寸① W≤4.2
H≤2.6
尺 寸 ① W≤4.2
H≤2.6
尺 寸 ② 4.2<W≤5
H≤2.6
尺 寸 ② 4.2<W≤5
2.6<H≤2.8
尺 寸 ② 4.2<W≤5
2.6<H≤3
基本样式
(左单开)
  W≤2.3
H≤2.6
尺 寸 ① W≤2.3
H≤2.6
尺 寸 ① W≤2.3
H≤2.6
尺 寸 ② W≤3
H≤2.8
尺 寸 ② W≤3
H≤3
基本样式
(右单开)
  W≤2.3
H≤2.6
尺 寸 ① W≤2.3
H≤2.6
尺 寸 ① W≤2.3
H≤2.6
尺 寸 ② W≤3
H≤2.8
尺 寸 ② W≤3
H≤3
基本样式+上亮+边门
  尺 寸 ① W≤6.7
H≤3.6
尺 寸 ① W≤6.7
H≤3.6
尺 寸 ① W≤6.7
H≤3.6
尺 寸 ② 6.7<W≤7.5
H≤3.6
尺 寸 ② 6.7<W≤7.5
3.6<H≤3.8
尺 寸 ② 6.7<W≤7.5
3.6<H≤4
基本样式+上亮
  尺 寸 ① W≤4.2
H≤3.6
尺 寸 ① W≤4.2
H≤3.6
尺 寸 ① W≤4.2
H≤3.6
尺 寸 ② 4.2<W≤5
H≤3.6
尺 寸 ② 4.2<W≤5
3.6<H≤3.8
尺 寸 ② 4.2<W≤5
3.6<H≤4
基本样式+边门
  尺 寸 ① W≤6.7
H≤2.6
尺 寸 ① W≤6.7
H≤2.6
尺 寸 ① W≤6.7
H≤2.6
尺 寸 ② 6.7<W≤7.5
H≤2.6
尺 寸 ② 6.7<W≤7.5
2.6<H≤2.8
尺 寸 ② 6.7<W≤7.5
2.6<H≤3

 

施工现场

 

松下型材门自动门(感应门)平移门

 

松下型材门自动门(感应门)平移门

 

松下型材门自动门(感应门)平移门

 

松下型材门自动门(感应门)平移门

 

阿斯顿马丁(AstonMartin)专卖店自动门,汽车4S店自动门

 

更多配件

 

松下型材门自动门 上海至泰专卖店安装维修服务中心 021-68568185


  上海松下自动门控专卖店 -维修技术服务中心 至泰版权所有 © 2005 ZITIN CORPORATION.  相关链接: 松下自动门专卖店 松下自动门,闭门器,地弹簧,旋转门 Panasonic松下自动门维修上海服务中心 松下电子锁,智能门锁,松下门锁 松下门禁读卡器,门禁控制器,门禁系统 松下自动门H3,松下自动门新品上市 上海松下自动门,上海松下门禁   专卖店风采 技术服务中心 付款信息 │ 联系我们
相关链接:上海自动门 Panasonic 松下自动门 门禁,门禁系统,指纹门禁,进口门禁,国际品牌门禁网 芜湖自动门闭门器地弹簧 北京松下电工有限公司,门控官网 安徽芜湖旋转门,自动门,门禁,闭门器,地弹簧 松下感应门,松下感应器,自动感应门,电动感应门,电子感应门,Panasonic感应门 旋转门,松下旋转门,自动旋转门 安徽,松下,自动门,闭门器,地弹簧 常熟,松下,自动门,闭门器,地弹簧 黄山,松下,自动门,闭门器,地弹簧 昆山,松下,自动门,闭门器,地弹簧 南京,松下,自动门,闭门器,地弹簧 太仓,松下,自动门,闭门器,地弹簧 苏州,松下,自动门,闭门器,地弹簧 台湾自动门,感应门,旋转门,医用门 香港自动门,感应门,旋转门,医用门 澳门自动门,感应门,旋转门,医用门